ページ内コンテンツ
概要
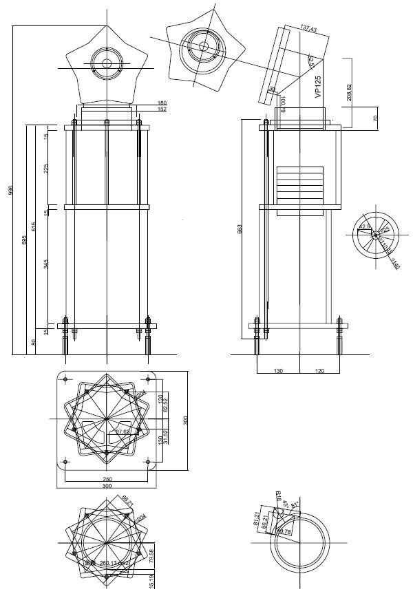
- 作品名: スター
- 副題: 逆ダブルバスレフ・3Dスパイラルスピーカー
- stereo誌2012年自作スピーカーコンテスト3位受賞作品
- 諸元
- サイズ: W 300mm x D 300mm x H 996mm
- 重量: 11Kg
- 使用ユニット
- stereo誌2012年8月号付録 ScanSpeak 10F/8422-03
- φ70mmキャンセルマグネット (コンテストレギュレーションに合致することをstereo誌編集部に確認済)
- stereo誌2012年8月号付録 ScanSpeak 10F/8422-03
- 使用材料
- 胴体 : シナベニヤ 15mm厚
- スパイラル: SPF材 19mm厚
- ヘッド: VP125塩ビ管 + シナアピトン合板 18mm厚
- M8寸切りボルト・ナット(締めあげ用)、M8ボルト・ナット(脚用)、M6寸切りボルト・ナット(スパイラル締めあげ用)
- その他、制振材・吸音材など
コンセプト
スキャンスピーク製(10F/8422-03)ユニット1本と、逆DBS(逆ダブルバスレフスパイラル)による制動の効いて良く伸びた豊かな低音に、バッフル形状の工夫による気持ち良い中高域でメリハリの効いた再生音を目指した。
基本方針
- 3Dスパイラルダクトの広帯域輻射の特性を生かしたダブルバスレフスピーカーをいくつか作ってきたが、特性的に優秀でも中低域の歪感や低域の鈍さが付きまとい、特に第一ダクトの調整に苦労した。
- 今回、ダブルバスレフのfd1をfd2より低くし、そこに3Dスパイラルを仕込む「逆DBS(逆ダブルバスレフスパイラル)」とすることでその苦労から解放された。 具体的には、軽快な中低域と遅れ感の少ない低域。付録のスキャンスピークユニットのXmaxの大きさを生かして量感がある一方で歪感の少なめな、制動の効いて良く伸びた低音を実現している。
- 更に、3Dスパイラルにはディスク積層方式の2重らせんタイプを使用、19mm厚のディスク枚数やディスク間の位相(ひねり方)を変化させることでダクト長やダクト断面積の容易に変えることができ、音出し後における広帯域輻射特性の調整に活用した。
- バッフル板にはシナアピトン合板を2枚重ねで使用し、ある程度の面積を持たせることで中域の押し出し感を補足。 星型形状とした上でユニットをセンターがら変芯することでバッフルステップ効果の分散を図り、ハイ上がり気味のユニットでも長時間の試聴に耐えられるものにした。
- 塩ビ管(VP125)を使ったヘッドのほか、胴体もM8ボルト締め上げ構造により完全分解可能とし、将来の部分的な改造・拡張や試作品への転用を可能とした。
当初の設計2案
- 初期の設計
星型モチーフは最初から考えていたので、胴体も星型に。(サイズが中途半端で後に変更)
逆ダブルバスレフ・スパイラル。第1ダクトの共振周波数のほうを第2ダクトのそれよりも低くすることで、中低域の中抜け感の少ないダブルバスレフ方式。見方によっては第2空気室は単なるホールディングチャンバーともいえるが、第1ダクトとしてスパイラルを使うと中高域の漏れがかなり目立つので、それを抑制する効果も期待できる。 - 塩ビ管使用案
星型胴体は作るのが大変! それにトールボーイ型のほうが自室での使用に向くってことで、塩ビ管にしようかと迷った時の設計。 音質向上上の必然性が無いことと、宙ぶらりんの内管・スパイラル部の保持の問題が残ることから、これもお蔵入り。
最終形
最終的に、製作の難しさには目をつむってトールボーイの星型胴体に纏まった。この最終形メリットは沢山あるので列挙すると。。
- 星型胴体は内部並行面が上下方向にしか無いので、定在波が発生しにくいし、単純管のように径が一定ではないからその寸法に基づく波長での共振も起きにくい。
- この形であれば、中央のV1/V2仕切板に取り付けるディスク取付位置を上/下枚数比を変更することで、V1/V2容積を変更することができる。
- V1/V2=7.3L/8.6L、fd1/fd2=54hz/170Hz
- なお、図面に記載無いですが第2ポートは底板にあり。
- 逆ダブルバスレフの設計・・ まずはネットで調べても確立された情報は手に入らず。 そこで、stereo8月号に掲載されていたダブルバスレフの計算式を元に、 測定結果と照合しつつ検証してゆく方法とした。
- 結果として、以下の2点を知見として得られたと考えている。
- fd1の共振はそれより共振周波数の高いfd2からはスルーで出てくるため、fd1の計算式には、V2の影響を乗する必要が無さそう。
- 反対に、fd2の共振周波数はfd1より高いため、V1の影響を乗する必要がありそう。
- 結果として、以下の2点を知見として得られたと考えている。
ヘッド部分
- VP管の斜め37.5度カットは、サインカーブの型紙を巻き付けてけがき、ハンドソーで。
- 塩ビ管の斜めカット用の型紙は、こちらに置いてあります。
- バッフル切出しは電動ハンディジグソーとグラインダーを使用。
- ヘッド内部は、塩ビの共振防止及び中高域の共鳴防止として鉛シートにシリコンシールの団子を付けたものを接着。これでだいぶ違います。
円筒2条積層ディスク型スパイラルの製作
- 円筒2条積層ディスク型スパイラルのディスクは、内径110mmの2/3をくり抜き、グラインダーで斜め加工、M6ボルトで締上げ。
- 実寸の型紙を作って、板にケガキ。
- グラインダーがぎりぎり入るサイズで、これ以下のサイズのスパイラルは製作が困難。
星型胴体の製作
- 苦労するのを承知で始めた星型胴体。 角度付けテーブルソーなど持っていないので、45度や81度カットはハンディジグソーで行い、あとはグラインダーで現物合わせで合わせ込みつつ、最後はエポキシ接着剤のお世話に。
- 組付け順は、最初に90度の接着を写真のように治具を使って正確に全て行い、その後で星型に一気に接着しました。 出来栄えが悪いのは私の技量不足による。 角度付けテーブルソーがあれば全く問題無い作業だっただろう。。
- 水平板を切り出した。歯車みたいだ。
塗装
- 胴体星型部分は水性クリアニスに着色ステイン(ブラックオリーブ色)を25%混合して10層、塗ってはサンダーがけの繰り返し。他は油性のラッカースプレー。
- バッフル板はいつものようにサンダー掛け後に無色クリアニスで10層塗り。 嫌みなく光り輝く金星のイメージはできたかな。 2枚重ねバッフルの前面板は裏からボルト止めにすることで交換可能。
試聴と測定、調整
- 塗装前の仮組み状態で音出し。 まずは軽く弾む中低域にビックリ。 普通のダブルバスレフでは抑制されていた中低域が、fd2の仕事でいとも簡単に飛びだしてきた。
- 続いて低域、最初凄く良く伸びていて32hzも軽々だったが、さすがにfd1が低すぎると判断してスパイラルのディスクを10枚→7枚に減らし、ひねりも小さくして断面積を広くしたところ、丁度良い量感と伸びのバランスが得られた。これこそ今までのケーブル巻き付け方式では不可能な、ディスク式スパイラルならではの調整。
- 塗装後の試聴でも中域は相変わらずスパイラルからの漏れは多いが、それほど激しい共鳴では無く、1Khz付近の若干の余分な響き(胴体板材自体の振動)も底板内部に干渉防止対策を実施し解決。
高域は、星型形状によるバッフルステップ効果の低減に期待したが、正直いって効果は良くわからない。ただ、ユニットの特性も良いので特定の音が目立ったり耳障りに感じることは無いので、悪い方向ではない気がするし中域の押しも出ているので、良しとする。- 水平1m。狭い部屋での測定なので参考にしかならないが掲載しておく。
- ダクトにマイクを置いての測定。スパイラルにより40~180Hzまで実用的な特性。fd2の山を抑えたほうが良かったかも、
コンテスト結果
- まさかの3位は、嬉しいけれども出来すぎかと。。
- 賞品も多数いただきました。
- メイン賞品の、ScanSpeakの19mmソフトドームツイーター、D2004/602000。 とても特性が良いので、マルチウエイを作らざるを得ないな。。
- 副賞のオヤイデ電気のバナナプラグとケーブル、はんだのセット
- 副賞の共立電子産業ミニスピーカーキット WP-7305B。ユニットはTangBandの5cmフルレンジ、W2-802SE。 次男君にあげた。
- 参考: 一次選考応募原稿(PDF)
総評
コンテスト後はBGM用に使おうかな、くらいの気持ちで始めたが、実際にはやはり工作も大変だった。けれどもそれを上回る、期待以上の良い音を得られたので、大変満足だし、結果的にコンテスト3位の受賞は出来すぎと思う。すばらしいユニットをstereo誌の付録にしていただき、感謝。
また、3Dスパイラルに関していえば以前のようなブームは去って最近は下火になっており、発明者のTakenakaさんのサイトからも削除されており、熱心に探求してきた私としては寂しい限り。 とはいえTakenakaさんには感謝しているし、まだまだ発展途上の方式と思っているので今後も使う機会は多いと思う。
なお、このスピーカー「スター」は実家の父の元に養子入りしてゆきました。親孝行の代理、よろしく頼む。 
関連記事
- なーおんブログ タグ「スター」が付いた記事
- ブログ記事リンク
- [Audio] stereo誌付録のScanSpeakユニット試聴
- [Audio] stereo誌コンテストへのアイデア
- [Audio] stereo誌コンテストへの設計
- [Audio] stereo誌コンテスト作品の製作1
- [Audio] stereo誌コンテストへの設計変更?
- [Audio] stereo誌コンテストへの設計再変更・製作2
- [Audio] stereo誌コンテストSP仮組み・音出し
- [Audio] stereo誌コンテストSP塗装・測定
- [Audio] stereo誌コンテストSPの音
- [Audio] Stereo誌自作スピーカーコンテスト第一次審査通過
- [Audio] Stereo誌コンテストに「スター」打ち上げ
- [Audio] 2012stereo誌コンテスト授賞式・試聴会(3位入賞)
- [Note Audio] 箱根日帰りドライブ・コニさん宅訪問記
- [Audio] 2012年stereo誌コンテスト3位「スター」実家に養子入り
- 他サイト記事リンク
- オントモヴィレッジ 第3回 自作スピーカーコンテスト受賞作品紹介!!
- 集まれ塩ビ管スピーカー主宰 たてちゅうブログ Stereo誌自作スピーカーコンテスト2012に行ってきました。
「スター」の会場での音出し動画も掲載されています。 - チープに音出し ステレオ誌コンテスト5
- 集まれ!塩ビ管スピーカー オフ会2013
添付ファイル:
| ぺージ情報 | |
|---|---|
| ぺージ名 : | inc/スター |
| ページ別名 : | 未設定 |
| ページ作成 : | なーお |
| 閲覧可 | |
| グループ : | すべての訪問者 |
| ユーザー : | すべての訪問者 |
| 編集可 | |
| グループ : | なし |
| ユーザー : | なし |
Counter: 3048,
today: 1,
yesterday: 1
初版日時: 2012-11-24 (土) 09:24:24
最終更新: 2019-08-17 (土) 07:11:56 (JST) (2462d) by なーお























